Story at a glance:
- Landmark Hospitality looks at how adaptive reuse brings fun discoveries and unique challenges to design.
- Excavated basements provide for more public space in preservation projects.
- One design team is activating a former City Hall in South Orange, New Jersey to become a restaurant and community hub.
In architecture and design, adaptive reuse refers to the process of reutilizing an existing building for a different purpose than its original. This process lends itself to more creativity and possibility than building from the ground up and can profoundly impact the environment, economy, and community.
At Landmark Hospitality, we exclusively take on adaptive reuse projects and have spent decades learning the ins and outs of the process.
The Design Puzzle

Outside the historic South Orange Village Hall, circa 1894. Photo courtesy of Landmark Hospitality
Adaptive reuse projects begin with finding a property filled with promise. The secret to success is discovering the beauty that hides behind the surface. The main reason that restoration is so compelling is that it gets the creative juices flowing and provides a unique design puzzle—different from that of a new build. Adaptive reuse offers surprises and lots of questions throughout the process. Open up the wall, find something unexpected, and think, “How am I going to make that a design highlight? How am I going to connect the new building to the old building?” These questions and the solutions they foster make the whole process more enjoyable.
With an adaptive reuse project, there is a basis for what the plan of action entails. We can only adjust the existing floor plans and plots of land so much. Restoration preserves history, and the story behind a structure always makes for a more exciting product. New builds are great when you want to stay on budget, but adaptive reuse provides a unique opportunity to mesh the old with the new. It is a challenging puzzle, but that’s what makes it so rewarding.
After embarking on these types of restorations for so many years, we have learned the tricks of the trade. For example, with every adaptive reuse project Landmark Hospitality takes on, we always excavate the basement because we need more public space. Many old buildings are not level, the staircases are sideways, and there’s a slant on the floor. To easily solve these problems, we put in footings and structural steel embedded in the floor beams so they are never visible.
When designing a public space, the ground floor must be opened up. This requires taking out numerous walls, moving fireplaces, and repositioning beams—to name a few strategies. Many people might view these creative ways to optimize space as a challenge. Still, after doing so many of them, we see each project as an exciting opportunity to create an exciting space once we put all of the pieces together.
The Covid Impact
As with various industries worldwide, the design community has seen material costs skyrocket and lead times for materials extend due to Covid-19. Adaptive reuse provides a sustainable means to overcome this challenge, as every existing property is composed of materials that can be repurposed. What was previously solely an environmental benefit is now a key advantage in the design community.
At Landmark Hospitality, we have built an extensive inventory of reclaimed lumber from various demolition projects we’ve done in the past. This supply has allowed us to continue thriving during the pandemic and ignited further creativity in our process by relying almost entirely on pieces we can reuse. We’ve added equipment in our shop to process this material to meet our material demand and no longer have to rely solely on outside sources. We are fanatics for reclaimed products and repurposing materials like old doors to bars, wrought iron fencing to tables, and beams into floorboards.
Giving New Life to a Historic Structure

Inside the old South Orange Village Hall, which is being renovated to become a restaurant complete with beer garden. Photo courtesy of Landmark Hospitality
When sourcing potential properties to take on, two baseline criteria are that the property is unique or is an adaptive reuse of a historic structure or warehouse. For hospitality projects, it is beneficial to look for destination towns or existing iconic hotels that can be expanded upon and updated to become current, thus regaining or expanding their title as the center of their given community.
We target adaptive reuse of historic structures, warehouses, and estates into thriving hospitality venues, in addition to iconic inns in destination towns that have the land to expand. We have always gravitated toward adaptive reuse because we think hospitality is about telling a story and adding layers to the guest experience. The depth of history within a property adds another layer of the story that guests enjoy when they come to our spaces.
The South Orange Village Hall

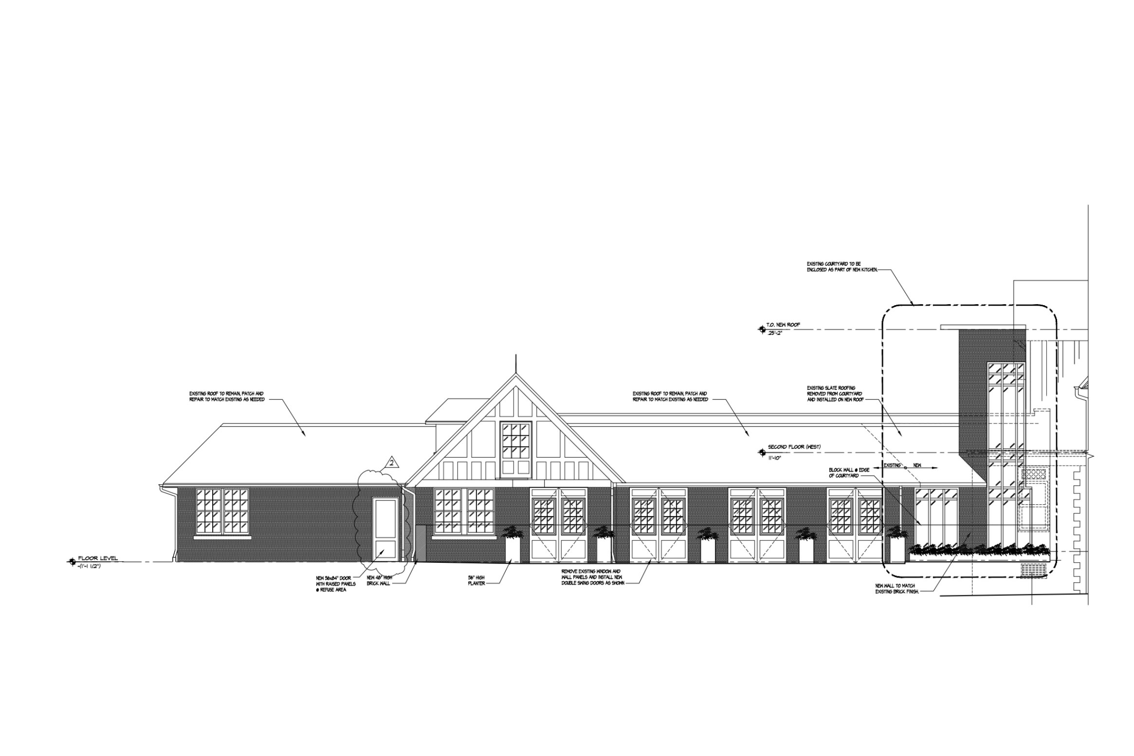
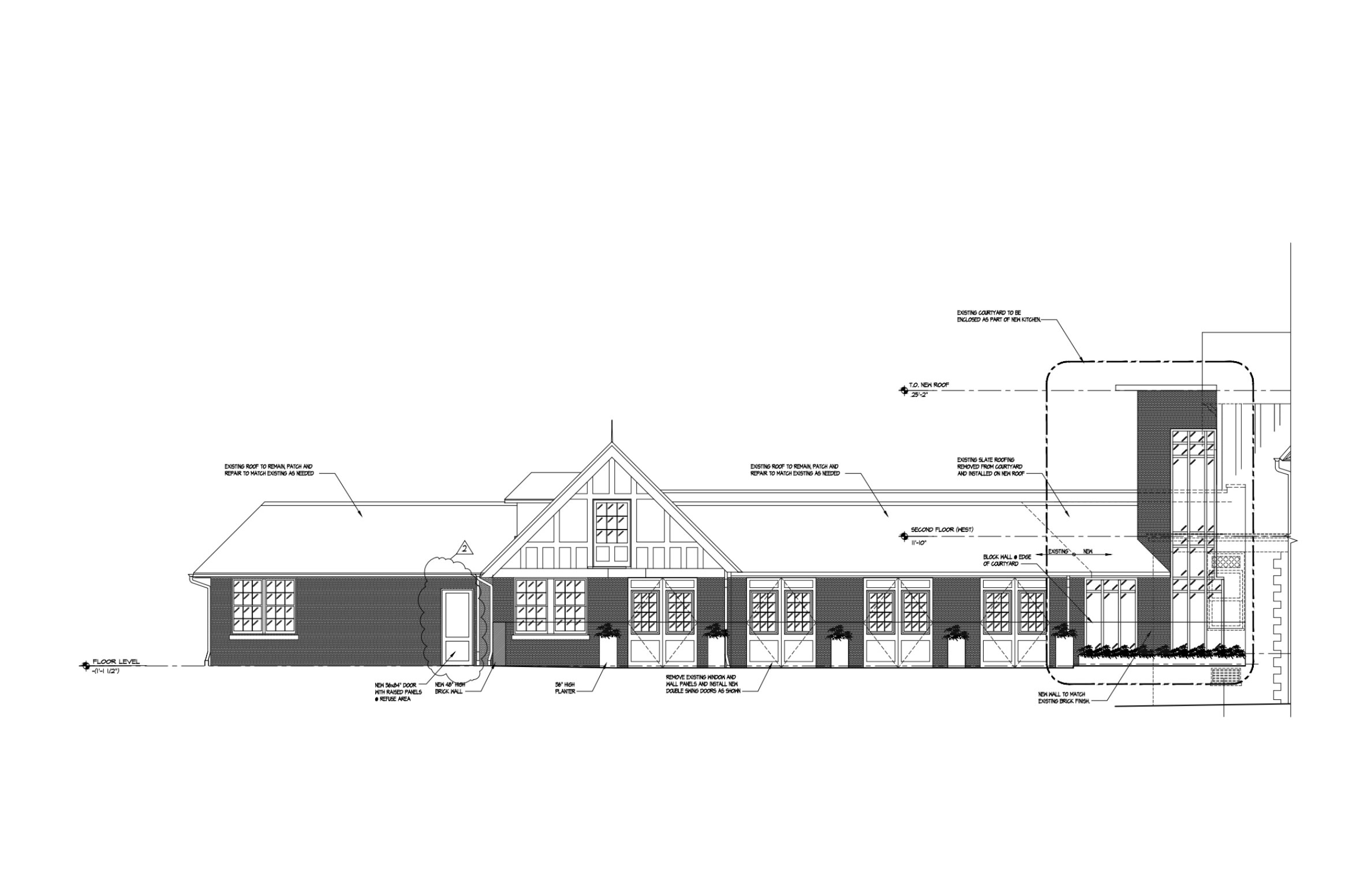
Proposed west elevation of South Orange Village Hall. Image courtesy of Landmark Hospitality
We’re currently working on the adaptive reuse of a building used as a town hall for the South Orange municipality as of late. This project is the perfect example of the good adaptive reuse can have on a community.
The story starts with the South Orange mayor—a progressive woman with a background in planning. Prior to Covid-19, City Hall had moved all of its services to an online platform. This left the town with a beautiful old building that needed an expensive renovation, yet served no real purpose for the community. The mayor saw this as an opportunity for development and put out a request for an adaptive reuse proposal. After competing against several other companies, our recommendation, steeped with the mission of bringing new life into the town, was chosen.
- Proposed west elevation of South Orange Village Hall. Drawing courtesy of Landmark Hospitality
- Proposed south elevation of South Orange Village Hall. Image courtesy of Landmark Hospitality
The South Orange Village Hall embodies all of the qualities we look for in a historic adaptive reuse project: It is a stunning building with a rich history. The property looks like a tavern yet has an extensive history—it was a police station for the town back when they had horses and pump wagons, then a jail for the town, and finally, City Hall.
With our experience in renovating, embarking on this building will be the catalyst for the town’s development. The building is one block off of the populated downtown area, but it had minimal foot traffic when it was City Hall. Even though we build hotels, and one of the competitor’s ideas was to make the space a hotel, we realized it was too small for that. Making it a hotel, similar to making it City Hall again, would not add enough vibrancy to the neighborhood. The layout would only allow for 12 to 15 rooms and have no significant effect on foot traffic. Instead, we decided to turn the property into a restaurant, beer garden, and event space to activate the town with thousands of people.
From a design standpoint, this property is incredible to work with. We are in the process of turning the previous garage portion into a beer garden, and opening up the second floor as an event space. The second floor structure lends itself to a really special event space because of all of the existing architectural detail, including a floor suspended from beams above by buckles and cables. We removed the attic to provide a clear line of sight up to the peaks of this great building. With this project we get to mix the old with the new, revitalize a community, and do this all within a historic building full of stories.
Rebuilding a Local Economy
By adding a business into a historic structure or adaptive reuse, we’re giving it life. Aside from the immediate, literal life, where visitors can come in and enjoy the space, we’re giving that property a source of income to survive. Typically government-owned historic buildings are expensive to upkeep. The idea behind the South Orange Village Hall project is that long into the future, because we have designed the business to be long lasting and successful, we’re saving the property for the long term. Taking on these projects puts us in a position where we’re breathing life into a building, renovating a historic structure, creating jobs, and giving the community a place to go.



